0048 733 100 622 Zakaszewskiego 1A, Międzyrzecz

Okna i drzwi aluminiowe

OKNA I DRZWI ALUMINIOWE produkujemy w oparciu o 4 sprawdzone systemy marki ALIPLAST: system okienno-drzwiowy STAR o podwyższonej izolacyjności termicznej, system aluminiowy SUPERIAL idealny do produkcji wszelkiego rodzaju okien i witryn zewnętrznych, system ECONOLINE przeznaczony do konstruowania wewnętrznych przegród oraz trójkomorowy system IMPERIAL przeznaczony do zewnętrznych drzwi, okien i witryn.

Okna i drzwi aluminiowe STAR Okna aluminiowe BLAU

BLAU STAR

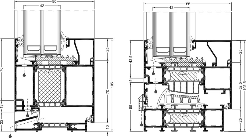
System okienno-drzwiowy o podwyższonej izolacyjności termicznej:

  • system trójkomorowy
  • współczynnik izolacyjności termicznej: Uf w przedziale 0,6–1,23 W/(m²K)
  • przekładka termiczna o szerokości 45 mm z innowacyjnych materiałów
  • głębokość konstrukcyjna: 90 mm ościeżnica i 99 mm skrzydło
  • możliwość okuwania drzwi systemem zawiasów rolkowych o bardzo dużej nośności
  • innowacyjny system odprowadzenia wody z konstrukcji
  • ten sam typ narożnika i łącznika T w komorze zewnętrznej i wewnętrznej
  • możliwość szklenia od zewnątrz
  • kompatybilność z systemami Luxus, Steel Look, Vision
  • nowoczesny design

BLAU SUPERIAL

Charakterystyka systemu

System o powiększonej izolacyjności termicznej. Dzięki trójkomorowym przekładkom termicznym, komorowej uszczelce centralnej i specjalnych uszczelkach szklących system osiąga współczynnik UR < 2,0 W/(m²K) (grupa materiałowa 1.0 wg DIN 4108). Głębokość ościeżnic okiennych i profili do zabudów stałych to 75 mm. Głębokość skrzydeł okiennych 84 mm. System osiąga bardzo dobre właściwości akustyczne. Możliwość stosowania wypełnień o grubościach 14–61 mm.

Zastosowanie:

  • wszelkiego rodzaju okna i witryny zewnętrzne
  • okna rozwierno-uchylne, rozwierne, uchylne, uchylno-przesuwne
  • drzwi otwierane do wewnątrz, oparte na zmodyfikowanym skrzydle okiennym
Okna i drzwi aluminiowe SUPERIAL

Okna i drzwi aluminiowe ECONOLINE

BLAU ECONOLINE

Charakterystyka systemu

System bez izolacji termicznej, przeznaczony do konstruowania wewnętrznych przegród, zarówno stałych jak i tych z oknami i drzwiami. Szerokość profili 51 mm (o 6 mm więcej niż standard rynkowy). Możliwość stosowania zestawów szybowych grubości od 3 mm do 38 mm. System Econoline jest kompatybilny z innymi systemami Aliplast.

Zastosowanie:

  • drzwi oraz segmenty ścian działowych w budynkach użyteczności publicznej i przemysłowych
  • możliwość wbudowania drzwi ECONOLINE w ściany działowe wykonane z segmentów ECONOLINE lub w inne ściany
  • możliwość konstruowania drzwi przesuwnych, wahadłowych, łączenie ścian pod dowolnym kątem

BLAU IMPERIAL

Charakterystyka systemu

Trójkomorowy system przeznaczony do konstruowania zewnętrznych drzwi, okien oraz różnego rodzaju witryn. Przekładka termiczna o szerokości 24 mm z poliamidu z włóknem szklanym. Profile drzwiowe IMPERIAL posiadają współczynnik przenikania ciepła UR = 2,2÷2,3 W/(m²K) (grupa materiałowa 2.1 wg DIN 4108). Szerokość profili 65 mm (ościeżnice, drzwiowe, słupki, skrzydła drzwiowe) i 74 mm (skrzydła okienne), grubość ścianki 1,7÷2,0 mm.

Maksymalne gabaryty skrzydła: szerokość 1300 mm przy wysokości 2200 mm lub szerokość 1200 mm przy wysokości 2400 mm.

Zastosowanie:

  • witryny szklone szybami zespolonymi i szkłem pojedynczym
  • okna rozwierno-uchylne, rozwierne, uchylne, uchylno-przesuwne
  • drzwi otwierane na zewnątrz, do wewnątrz, jedno i dwuskrzydłowe, z doświetlami
  • drzwi wahadłowe i przesuwne
  • okna obrotowe z pionową i poziomą osią obrotu
Okna i drzwi aluminiowe IMPERIAL

Zainteresowanych ofertą aluminium zapraszamy do kontaktu z Działem Handlowym w celu ustalenia szczegółów i wyceny.


OKNA PCV
okna PVC
DRZWI
drzwi
ALUMINIUM
aluminium
ROLETY
rolety
BRAMY
bramy
AKCESORIA
akcesoria